Maison JQ

Extension et rénovation en auto-construction d’une maison mitoyenne à Lille

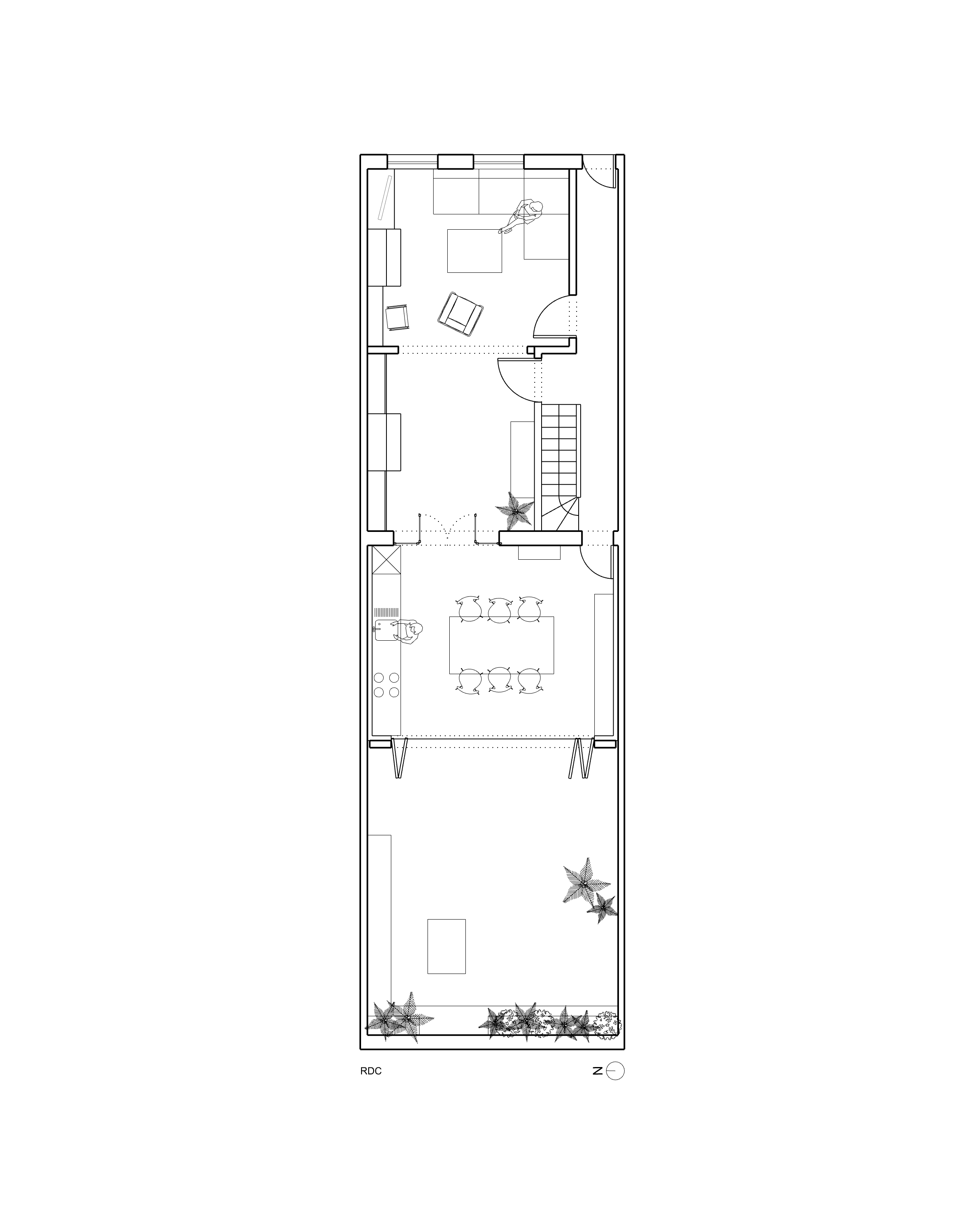
Dans ce projet, tout est pensé pour tirer parti d’un espace contraint : une parcelle étroite, une petite cour… et pourtant, une vraie sensation d’espace et de lumière.

La verrière apporte de la lumière naturelle au cœur de la maison, baignant les matières brutes de nuances changeantes tout au long de la journée.

Dedans/dehors : dès les beaux jours, la cuisine s’ouvre sur la cour, qui passe de 40 à 60m² d’usage réel. Le jardin devient une extension naturelle de la maison.

L’architecture reste volontairement minimaliste, laissant s'exprimer le bois, le béton, la brique, les ombres et les objets choisis. Un lieu simple, calme, habité par la lumière.